Sorso. Avviati i lavori di adeguamento funzionale e messa in sicurezza della palestra e degli impianti sportivi della scuola secondaria di primo grado “Gerolamo Cappai”, in via Addis, e dei campetti all’aperto della succursale ex Cress di via Porto Torres. Un intervento corposo che sarà realizzato con risorse a valere sui fondi “Asse II-PON Per la Scuola”, per un importo complessivo di quasi 600mila euro (303.700 euro per la scuola Cappai e 295.500 per l’ex Cress).
“Esprimo a nome di tutta l’amministrazione comunale grande soddisfazione – dichiara il sindaco Fabrizio Demelas – per essere riusciti in breve tempo a programmare, reperire le risorse, progettare e avviare i lavori, di due opere fondamentali per la qualità dell’offerta educativa nelle nostre scuole. La palestra del Cappai e l’area di pertinenza così come le pertinenze del Cress saranno oggetto di una completa trasformazione, che permetterà di garantire alla nostra popolazione scolastica spazi adeguati, moderni e sicuri per la pratica dell’attività motoria e con essa di diverse discipline sportive. A breve inoltre partirà un intervento analogo che interesserà la palestra del plesso di Santa Maria e del campetto prospiciente. La scuola e i suoi spazi di apprendimento sono centrali nel percorso di crescita delle giovani generazioni ed è imprescindibile che l’amministrazione comunale oggi e in futuro gli riservi e continui a riservargli la massima attenzione possibile”.
La palestra e gli spogliatoi della scuola Cappai saranno così resi pienamente fruibili innalzandone contestualmente il livello di sicurezza. Si tratta di un intervento di elevata qualità con particolare attenzione all’innovazione delle soluzioni tecniche e ai materiali che saranno in tutto o in parte riciclati, naturali o rigenerabili e per quanto possibile di provenienza locale.
Si procederà al rifacimento dell’impermeabilizzazione della copertura della palestra che allo stato attuale risulta notevolmente danneggiata e causa di infiltrazioni. Saranno inoltre rinnovate tutte le dotazioni di sicurezza, relativamente agli accessi, alla rampa di fuga, all’illuminazione di emergenza e ai cartelli di prevenzione incendi.
Le opere interesseranno anche il cortile esterno, il campetto che allo stato attuale risulta impraticabile sia per la forte usura causata dagli agenti atmosferici sia per la mancanza di attrezzature. L’area sarà riqualificata e tornerà fruibile in sicurezza con pavimentazione antitrauma e recinzione sul lato confinante con la strada pubblica. Nella riqualificata area esterna sarà realizzato un campo di basket che avrà le caratteristiche di “impianto sportivo di esercizio”, secondo le norme Coni, per lo svolgimento di attività propedeutiche, formative e di mantenimento delle discipline sportive regolamentate da Federazioni Sportive Nazionali (FSN) e Discipline Sportive Associate (DSA).
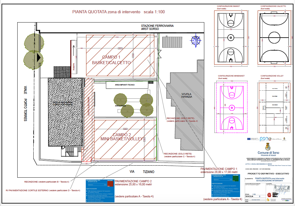
A seguire i lavori si sposteranno ad interessare gli spazi all’aperto dell’ex Cress per la realizzazione di un campo da basket e calcetto e di uno da minibasket e volley. Un progetto che trasformerà gli spazi all’aperto della scuola di via Porto Torres attraverso l’adeguamento funzionale e la messa in sicurezza delle aree attualmente utilizzate per l’attività motoria in condizioni di semi impraticabilità. Con l’intervento previsto i campi torneranno pienamente agibili attraverso la realizzazione di pavimentazioni antitrauma e il ripristino e l’integrazione delle recinzioni con reti antipallone sui lati in cui risultano incomplete o mancanti.
Saranno installati canestri, porte, reti e tracciamenti per le diverse discipline sportive previste e sarà messo in sicurezza anche il tratto di cortile esterno che collega i due campi da gioco e che conduce dalla rampa per disabili all’ingresso su via Tiziano, con il ripristino della pavimentazione danneggiata. Nell’intero cortile sarà realizzata una nuova pavimentazione mentre nei campi da basket e calcetto e da volley e minibasket il fondo sarà realizzato con un pavimento sportivo in gomma ecocompatibile omologato Coni e conforme alla normativa.
A completamento infine è prevista la manutenzione e la pittura delle ringhiere, delle inferriate e delle cancellate che delimitano l’intero spazio esterno della scuola.








































